| 賃料/共益費 5.3万円/ 礼金/敷金 無し/1ヶ月 現況 空室中 | この物件について問い合わせる |
- 2階以上
- 最上階
- 角部屋
- 南向き
- バス・トイレ別
- 洗浄便座
- シャワー
- エアコン
- 給湯
- 室内洗濯機置場
- 駐車2台可
- バルコニ−
- BSアンテナ
写真
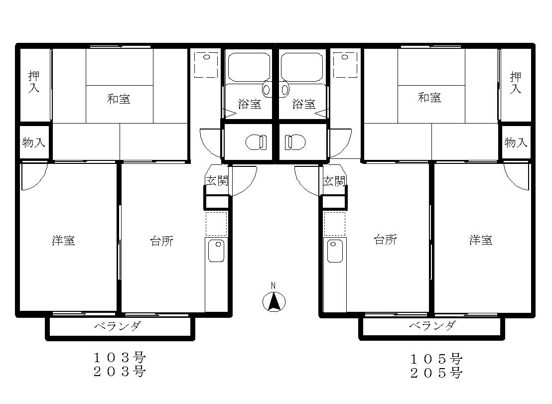
間取り図
物件詳細情報
| 物件番号 | CF0908 | 所在地 | 松江市学園二丁目32−26 |
|---|---|---|---|
| 種別 | アパート、コーポ | 構造 | 鉄骨造 |
| 建築年月 | 1990年3月 | 間取り | 2DK |
| 専有面積 | 43.8m² | 向き | 南 |
| 建物階数 | 2階建 | 駐車場 | 有(料金込み) |
| 駐車料金 | 所在階数 | 2階部 | |
| 取引形態 | 仲介 | 仲介料 | 58,300円 |
| 敷き引き | なし | ||
| 保険料 | 住宅総合保険加入要 2年間(更新必要) | ||
| 校区 | 母衣小 二中 東高 | ||
| 備考 | 【間取り】洋6帖 ・ 洋6帖 ・ DK6帖 ※現在、改装中 ★特 典:礼金/契約更新料不要/入居時のカギ交換費用不要 ■周 辺:スーパーマーケット/バス停/交番 ■設 備:エアコン・ウォシュレット・光インターネット対応 ※インターネット入線申込/使用料は入居者負担となります ■駐車場:有(1台目賃料に含む) 2台目 月額3,300円(小型車専用) ※台数に限りがありますので、事前に当社までご確認ください。 ■電 気:中国電力 /水道:松江上下水道局 / ガス:プロパン ■退去時:ハウスクリーニング費用/故意、過失に伴う修繕費をご負担頂きます。 ■保証会社要加入:初回保証料(賃料等総額の40%) / 連帯保証人1名必要 1年毎更新料15,000円 / 賃料振替手数料毎月440円(税込) ■くらしーど24要加入:月額880円 ※物件の写真、間取りが現況と異なる(間取りの反転・壁紙の色・床材等)場合、現況を優先します。 |
||
| 物件番号 | CF0908 |
|---|---|
| 所在地 | 松江市学園二丁目32−26 |
| 種別 | アパート、コーポ |
| 構造 | 鉄骨造 |
| 建築年月 | 1990年3月 |
| 間取り | 2DK |
| 専有面積 | 43.8m² |
| 向き | 南 |
| 建物階数 | 2階建 |
| 駐車場 | 有(料金込み) |
| 駐車料金 | |
| 所在階数 | 2階部 |
| 取引形態 | 仲介 |
| 仲介料 | 58,300円 |
| 敷き引き | なし |
| 保険料 | 住宅総合保険加入要 2年間(更新必要) |
| 校区 | 母衣小 二中 東高 |
| 備考 | 【間取り】洋6帖 ・ 洋6帖 ・ DK6帖 ※現在、改装中 ★特 典:礼金/契約更新料不要/入居時のカギ交換費用不要 ■周 辺:スーパーマーケット/バス停/交番 ■設 備:エアコン・ウォシュレット・光インターネット対応 ※インターネット入線申込/使用料は入居者負担となります ■駐車場:有(1台目賃料に含む) 2台目 月額3,300円(小型車専用) ※台数に限りがありますので、事前に当社までご確認ください。 ■電 気:中国電力 /水道:松江上下水道局 / ガス:プロパン ■退去時:ハウスクリーニング費用/故意、過失に伴う修繕費をご負担頂きます。 ■保証会社要加入:初回保証料(賃料等総額の40%) / 連帯保証人1名必要 1年毎更新料15,000円 / 賃料振替手数料毎月440円(税込) ■くらしーど24要加入:月額880円 ※物件の写真、間取りが現況と異なる(間取りの反転・壁紙の色・床材等)場合、現況を優先します。 |
302 since 2026-02-06
地図
この物件の周辺地図を開く取り扱い店舗
(有)不動産ラインズ
〒690-0825 島根県松江市学園2丁目6-3
[免許番号]島根県知事(8)第825号
公益社団法人 全国宅地建物取引業保証協会会員
公益社団法人 島根県宅地建物取引業協会会員
一般社団法人 全国賃貸不動産管理業協会会員

- 0852-22-3001
ご連絡の際は「山陰不動産ナビを見た」と言うとスムーズです - FAX
- 0852-22-3050


























