| 賃料/共益費 15万円/ 礼金/敷金 1ヶ月/2ヶ月 現況 空室待ち(入居可能日:2026年04月12日) | この物件について問い合わせる |
- 2階以上
- 角部屋
- 南向き
- IHコンロ
- コンロ2口以上
- システムキッチン
- カウンターキッチン
- バス・トイレ別
- 洗浄便座
- 浴室乾燥
- 追い炊き機能
- シャワー
- エアコン
- 給湯
- 洗面台
- 室内洗濯機置場
- フローリング
- クロ−ゼット
- ウォークインクローゼット
- 駐輪場
- 宅配ボックス
- エレベータ
- バルコニ−
- オートロック
- TVモニターフォン
- 管理人常駐
- ケーブルテレビ
写真
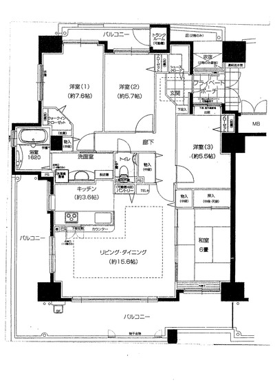
間取り図
物件詳細情報
| 物件番号 | CF1377 | 所在地 | 松江市大正町447−30 |
|---|---|---|---|
| 種別 | 賃貸マンション | 構造 | 鉄筋コンクリート造 |
| 建築年月 | 2005年3月 | 間取り | 4LDK |
| 専有面積 | 102.63m² | 向き | 南 |
| 建物階数 | 15階建 | 駐車場 | 有(料金込み) |
| 駐車料金 | 所在階数 | 5階部 | |
| 取引形態 | 仲介 | 仲介料 | 165,000円 |
| 敷き引き | |||
| 保険料 | 住宅総合保険加入必要 | ||
| 校区 | 中央小学校 / 松江第3中学校 | ||
| 備考 | 【間取り】和6帖・洋5.5帖・洋5.7帖・洋7.6・LDK19.2帖(4LDK) ■周 辺:松江駅、ショッピングセンターイオン、中央小学校周辺 ■設 備:オートロック、CATV、駐輪場、3面バルコニー、食器洗い洗浄機 ■駐車場:敷地内平面駐車場 ■保証会社加入必要:初回保証料(賃料等総額の40%) / 連帯保証人1名必要 1年毎更新料15,000円 / 賃料等振替手数料毎月440円(税込) ■退去時:ハウスクリーニング費用・畳張替費用をご負担頂きます。 |
||
| 物件番号 | CF1377 |
|---|---|
| 所在地 | 松江市大正町447−30 |
| 種別 | 賃貸マンション |
| 構造 | 鉄筋コンクリート造 |
| 建築年月 | 2005年3月 |
| 間取り | 4LDK |
| 専有面積 | 102.63m² |
| 向き | 南 |
| 建物階数 | 15階建 |
| 駐車場 | 有(料金込み) |
| 駐車料金 | |
| 所在階数 | 5階部 |
| 取引形態 | 仲介 |
| 仲介料 | 165,000円 |
| 敷き引き | |
| 保険料 | 住宅総合保険加入必要 |
| 校区 | 中央小学校 / 松江第3中学校 |
| 備考 | 【間取り】和6帖・洋5.5帖・洋5.7帖・洋7.6・LDK19.2帖(4LDK) ■周 辺:松江駅、ショッピングセンターイオン、中央小学校周辺 ■設 備:オートロック、CATV、駐輪場、3面バルコニー、食器洗い洗浄機 ■駐車場:敷地内平面駐車場 ■保証会社加入必要:初回保証料(賃料等総額の40%) / 連帯保証人1名必要 1年毎更新料15,000円 / 賃料等振替手数料毎月440円(税込) ■退去時:ハウスクリーニング費用・畳張替費用をご負担頂きます。 |
319 since 2022-04-04
地図
この物件の周辺地図を開く取り扱い店舗
(有)不動産ラインズ
〒690-0825 島根県松江市学園2丁目6-3
[免許番号]島根県知事(8)第825号
公益社団法人 全国宅地建物取引業保証協会会員
公益社団法人 島根県宅地建物取引業協会会員
一般社団法人 全国賃貸不動産管理業協会会員

- 0852-22-3001
ご連絡の際は「山陰不動産ナビを見た」と言うとスムーズです - FAX
- 0852-22-3050


























