| 賃料/共益費 48.4万円/11,000円 礼金/敷金 無し/3ヶ月 現況 空室待ち(入居可能日:2026年05月01日) | この物件について問い合わせる |
- 1階の物件
- 洗浄便座
- 暖房便座
- エアコン
- 駐車2台可
- 礼金ゼロ
写真
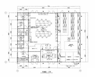
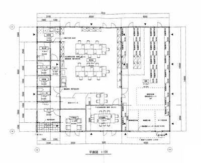
間取り図
物件詳細情報
| 物件番号 | DD1976 | 所在地 | 松江市大庭町1810番5 |
|---|---|---|---|
| 種別 | 貸し事務所 | 構造 | 鉄骨造 |
| 建築年月 | 2017年2月 | 間取り | 無該当 |
| 専有面積 | 253.4m² | 向き | 南 |
| 建物階数 | 1階建 | 駐車場 | 有(料金込み) |
| 駐車料金 | 5,500円 | 所在階数 | 1階部 |
| 取引形態 | 仲介 | 仲介料 | 484,000円 |
| 敷き引き | |||
| 保険料 | |||
| 校区 | |||
| 備考 | ■大庭町ショッピングセンター内の築浅居抜き物件のご紹介です。 『入居可能日:2026年5月1日から』 ■おすすめ業種 メーカー事務所、デイサービス、士業事務所、IT関連、運輸・物流関係、学習塾、スポーツクラブ、設計事務所、医院、理美容業、物販、飲食など幅広い業種相談可。 ■事務所仕様 OAフロア対応、給湯室・更衣室有り、トイレ2か所、応接室・会議室・休憩室、窓(ペアガラス) ■駐車場5台分賃料込み:追加をご希望の際は1台5500円(税込)※最大15台まで利用可 ■間仕切り建具の撤去移動は貸主負担。 ■周辺にはスーパーなど商業施設が多数が集まる地域となりますので、ぜひご検討下さい。 ※掲載の内観写真、間取り図が現状と異なる場合は現状を優先しますので、予めご了承ください。 ※10〜20年の定期建物賃貸借契約 ※中途解約条項あり(短期解約ペナルティあり) |
||
| 物件番号 | DD1976 |
|---|---|
| 所在地 | 松江市大庭町1810番5 |
| 種別 | 貸し事務所 |
| 構造 | 鉄骨造 |
| 建築年月 | 2017年2月 |
| 間取り | 無該当 |
| 専有面積 | 253.4m² |
| 向き | 南 |
| 建物階数 | 1階建 |
| 駐車場 | 有(料金込み) |
| 駐車料金 | 5,500円 |
| 所在階数 | 1階部 |
| 取引形態 | 仲介 |
| 仲介料 | 484,000円 |
| 敷き引き | |
| 保険料 | |
| 校区 | |
| 備考 | ■大庭町ショッピングセンター内の築浅居抜き物件のご紹介です。 『入居可能日:2026年5月1日から』 ■おすすめ業種 メーカー事務所、デイサービス、士業事務所、IT関連、運輸・物流関係、学習塾、スポーツクラブ、設計事務所、医院、理美容業、物販、飲食など幅広い業種相談可。 ■事務所仕様 OAフロア対応、給湯室・更衣室有り、トイレ2か所、応接室・会議室・休憩室、窓(ペアガラス) ■駐車場5台分賃料込み:追加をご希望の際は1台5500円(税込)※最大15台まで利用可 ■間仕切り建具の撤去移動は貸主負担。 ■周辺にはスーパーなど商業施設が多数が集まる地域となりますので、ぜひご検討下さい。 ※掲載の内観写真、間取り図が現状と異なる場合は現状を優先しますので、予めご了承ください。 ※10〜20年の定期建物賃貸借契約 ※中途解約条項あり(短期解約ペナルティあり) |
629 since 2015-08-21
地図
この物件の周辺地図を開く取り扱い店舗
イチエイ(一栄不動産開発(株))松江店
〒690-0001 島根県松江市東朝日町626-4
[免許番号]国土交通大臣(4)7264号
公益社団法人 全国宅地建物取引業保証協会会員
公益社団法人 島根県宅地建物取引業協会会員

- 0852-20-7788
ご連絡の際は「山陰不動産ナビを見た」と言うとスムーズです - FAX
- 0852-20-7768

















