| 賃料/共益費 2.3万円/2,000円 礼金/敷金 無し/2ヶ月 現況 空室中 | この物件について問い合わせる |
- 2階以上
- 洗浄便座
- エアコン
- 駐車2台可
- ケーブルテレビ
- インターネット
写真
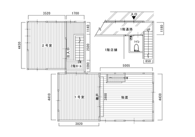
間取り図
物件詳細情報
| 物件番号 | DQ0086 | 所在地 | 雲南市木次町里方 |
|---|---|---|---|
| 種別 | 貸し事務所 | 構造 | 木造 |
| 建築年月 | 1963年10月 | 間取り | 1K |
| 専有面積 | 16.72m² | 向き | 西 |
| 建物階数 | 2階建 | 駐車場 | 有(料金込み) |
| 駐車料金 | 所在階数 | 2階部 | |
| 取引形態 | 仲介 | 仲介料 | 25,300円 |
| 敷き引き | 1ヶ月の敷引きあり | ||
| 保険料 | 火災保険の加入が必要 | ||
| 校区 | |||
| 備考 | 1、雲南市役所に100mの近い場所です。 2、内装、設備については相談に応じます。 2、便所は共同です。 |
||
| 物件番号 | DQ0086 |
|---|---|
| 所在地 | 雲南市木次町里方 |
| 種別 | 貸し事務所 |
| 構造 | 木造 |
| 建築年月 | 1963年10月 |
| 間取り | 1K |
| 専有面積 | 16.72m² |
| 向き | 西 |
| 建物階数 | 2階建 |
| 駐車場 | 有(料金込み) |
| 駐車料金 | |
| 所在階数 | 2階部 |
| 取引形態 | 仲介 |
| 仲介料 | 25,300円 |
| 敷き引き | 1ヶ月の敷引きあり |
| 保険料 | 火災保険の加入が必要 |
| 校区 | |
| 備考 | 1、雲南市役所に100mの近い場所です。 2、内装、設備については相談に応じます。 2、便所は共同です。 |
4434 since 2016-11-26
地図
この物件の周辺地図を開く取り扱い店舗
有限会社 エスミ産業
〒699-1324 島根県雲南市木次町西日登104
[免許番号]島根県知事(4)第1096号
公益社団法人 公益財団法人不動産保証協会会員

- 0854-42-1246
ご連絡の際は「山陰不動産ナビを見た」と言うとスムーズです - FAX
- 0854-42-1268













