| 賃料/共益費 5.5万円/2,000円 礼金/敷金 無し/1ヶ月 現況 空室中 | この物件について問い合わせる |
- 1階の物件
- 角部屋
- バス・トイレ別
- エアコン
- 洗面台
- 室内洗濯機置場
- バルコニ−
- ケーブルテレビ
- インターネット
写真
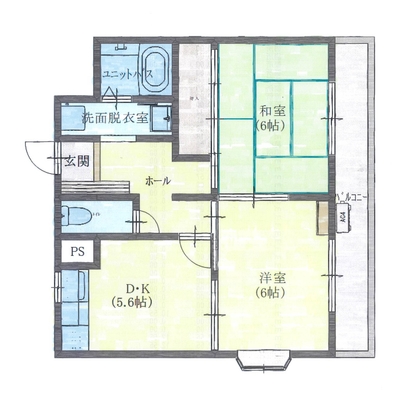
間取り図
物件詳細情報
| 物件番号 | DV0030 | 所在地 | 松江市東津田町1693-4 |
|---|---|---|---|
| 種別 | アパート、コーポ | 構造 | 鉄筋コンクリート造 |
| 建築年月 | 1997年5月 | 間取り | 2DK |
| 専有面積 | 49.66m² | 向き | 東 |
| 建物階数 | 2階建 | 駐車場 | 有(料金込み) |
| 駐車料金 | 所在階数 | 1階部 | |
| 取引形態 | 仲介 | 仲介料 | 60,500円 |
| 敷き引き | |||
| 保険料 | 要加入 | ||
| 校区 | 津田小学校・第四中学校 | ||
| 備考 | 東向きのバルコニーに和室6帖と洋室6帖が接した部屋があります。 洗濯物や布団を、干したりしまったりがしやすい間取です。 エアコンは洋室に1台付いています。 インターネット付です。 玄関にはゆったりサイズのシューズボックス\(*^▽^*)/ 家賃保証会社の利用をご希望の方は別途費用を要します。詳しくはお電話にてお問合せ下さい。 24時間スーパーのトライアルにもディオにも近く、お買い物にいつでも行けそうですね! 駐車場は1台敷地内にあります(料金込み)。2台目は別途3000円(空き状況の確認が必要です) 内覧ご希望の方は0120-663-680までお電話下さい!お待ちしております。 |
||
| 物件番号 | DV0030 |
|---|---|
| 所在地 | 松江市東津田町1693-4 |
| 種別 | アパート、コーポ |
| 構造 | 鉄筋コンクリート造 |
| 建築年月 | 1997年5月 |
| 間取り | 2DK |
| 専有面積 | 49.66m² |
| 向き | 東 |
| 建物階数 | 2階建 |
| 駐車場 | 有(料金込み) |
| 駐車料金 | |
| 所在階数 | 1階部 |
| 取引形態 | 仲介 |
| 仲介料 | 60,500円 |
| 敷き引き | |
| 保険料 | 要加入 |
| 校区 | 津田小学校・第四中学校 |
| 備考 | 東向きのバルコニーに和室6帖と洋室6帖が接した部屋があります。 洗濯物や布団を、干したりしまったりがしやすい間取です。 エアコンは洋室に1台付いています。 インターネット付です。 玄関にはゆったりサイズのシューズボックス\(*^▽^*)/ 家賃保証会社の利用をご希望の方は別途費用を要します。詳しくはお電話にてお問合せ下さい。 24時間スーパーのトライアルにもディオにも近く、お買い物にいつでも行けそうですね! 駐車場は1台敷地内にあります(料金込み)。2台目は別途3000円(空き状況の確認が必要です) 内覧ご希望の方は0120-663-680までお電話下さい!お待ちしております。 |
7 since 2026-03-28
地図
この物件の周辺地図を開く取り扱い店舗
有限会社 大廣建設(DAIKOU不動産)
〒690-0024 島根県松江市馬潟町341-4
[免許番号]島根県知事(4)第1103号
営業時間:9:00〜18:00
休業日:毎週火曜・水曜、夏季休暇、年末年始
公益社団法人 島根県宅地建物取引業協会会員

- 0852-33-7889
ご連絡の際は「山陰不動産ナビを見た」と言うとスムーズです - FAX
- 0852-33-7769

























