| 賃料/共益費 0.66万円/ 礼金/敷金 無し/無し 現況 空室中 | この物件について問い合わせる |
写真
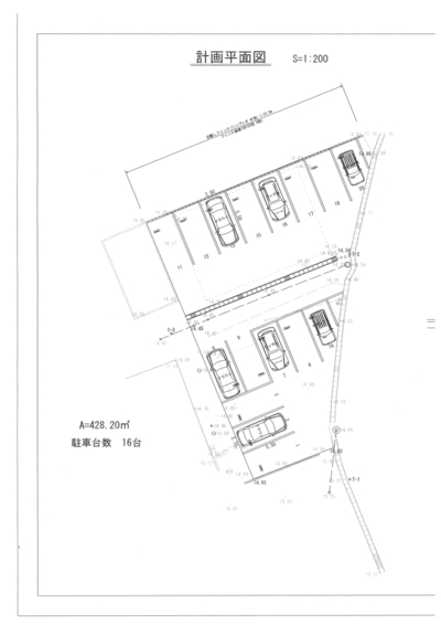
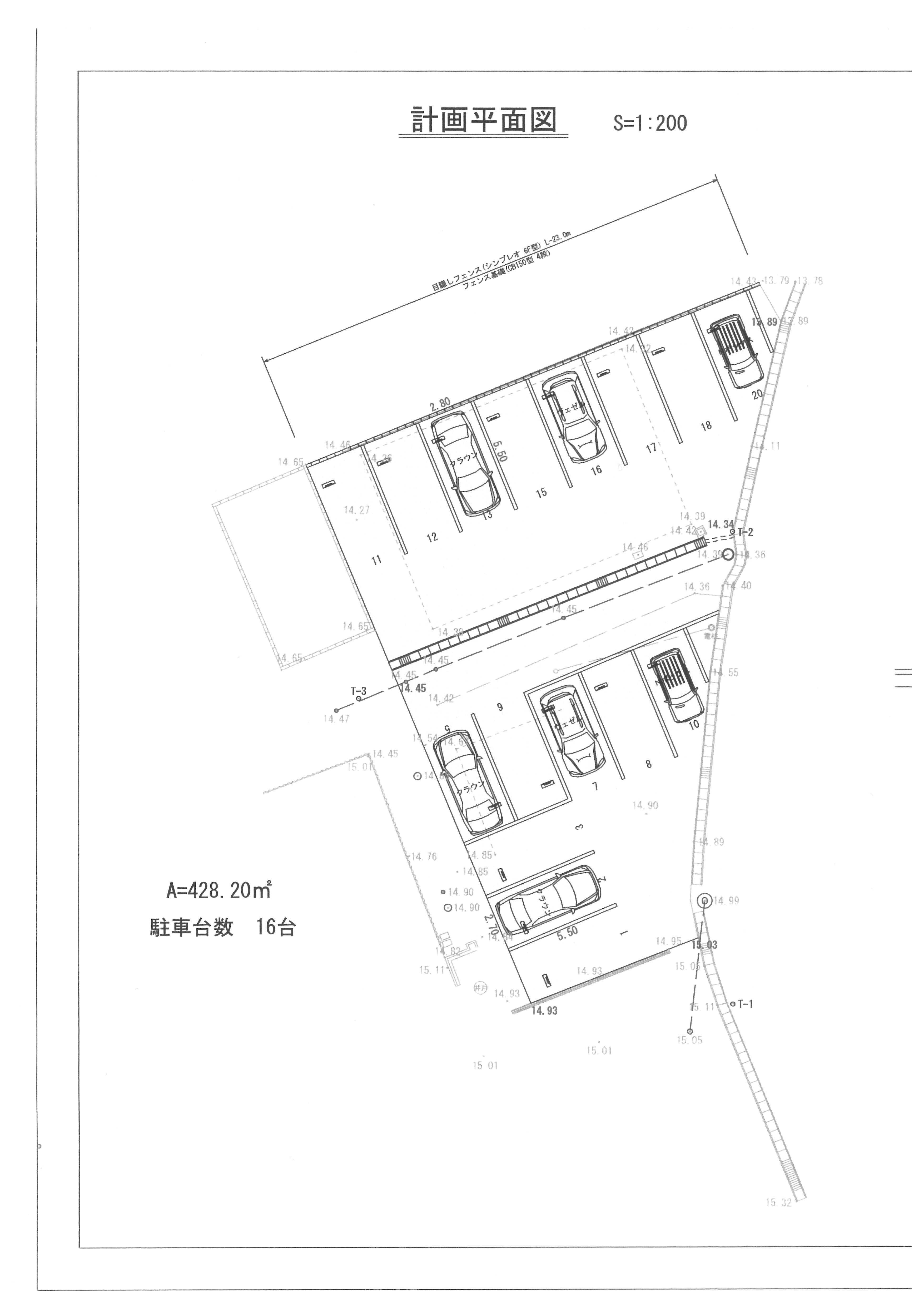
間取り図
物件詳細情報
| 物件番号 | EP0091 | 所在地 | 松江市浜乃木4-875-10 |
|---|---|---|---|
| 種別 | 貸し駐車場 | 構造 | --- |
| 建築年月 | 間取り | 無該当 | |
| 専有面積 | 向き | --- | |
| 建物階数 | --- | 駐車場 | --- |
| 駐車料金 | 所在階数 | --- | |
| 取引形態 | 仲介 | 仲介料 | 7,260円 |
| 敷き引き | |||
| 保険料 | |||
| 校区 | |||
| 備考 | アスファルト舗装の新しい駐車場です。 通路も区画も広く、とても駐車しやすい駐車場です。 普通車区画6600円、軽自動車区画5500円です。 |
||
| 物件番号 | EP0091 |
|---|---|
| 所在地 | 松江市浜乃木4-875-10 |
| 種別 | 貸し駐車場 |
| 構造 | --- |
| 建築年月 | |
| 間取り | 無該当 |
| 専有面積 | |
| 向き | --- |
| 建物階数 | --- |
| 駐車場 | --- |
| 駐車料金 | |
| 所在階数 | --- |
| 取引形態 | 仲介 |
| 仲介料 | 7,260円 |
| 敷き引き | |
| 保険料 | |
| 校区 | |
| 備考 | アスファルト舗装の新しい駐車場です。 通路も区画も広く、とても駐車しやすい駐車場です。 普通車区画6600円、軽自動車区画5500円です。 |
1575 since 2023-05-09
地図
この物件の周辺地図を開く取り扱い店舗
いたもち不動産
〒690-0860 松江市西川津町4304−2
[免許番号]島根県知事(4)第1175号
公益社団法人 不動産保証協会 島根県本部会員
中国地区不動産公正取引協議会会員

- 0852-25-0199
ご連絡の際は「山陰不動産ナビを見た」と言うとスムーズです - FAX
- 0852-67-1088











