| 賃料/共益費 18.7万円/10,000円 礼金/敷金 1ヶ月/6ヶ月 現況 空室中 | この物件について問い合わせる |
- 1階の物件
- 角部屋
写真
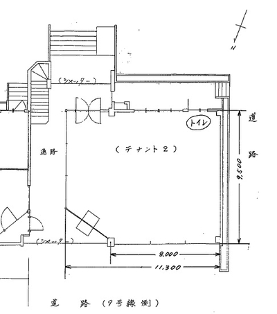
間取り図
物件詳細情報
| 物件番号 | GN0033 | 所在地 | 出雲市渡橋町1177 |
|---|---|---|---|
| 種別 | 貸し事務所 | 構造 | 鉄骨造 |
| 建築年月 | 間取り | 1K | |
| 専有面積 | 103.23m² | 向き | 北 |
| 建物階数 | 2階建 | 駐車場 | 有(料金別) |
| 駐車料金 | 所在階数 | 1階部 | |
| 取引形態 | 仲介 | 仲介料 | 187,000円 |
| 敷き引き | |||
| 保険料 | |||
| 校区 | 四絡小・今市小 | ||
| 備考 | 賃料:187380円 消費税=202370円 借家人賠償保険:借主にて加入要 保証保険加入要:初回保証料は賃料の100% 更新料:0.8%(賃料と引き落としです。引落手数料有り) 共益費10000円要(内訳:警備保障代・共有電気代・共有水道代・共有部分清掃代) 仲介手数料187380円+消費税 ※駐車場料3000円/1台 ※別途消費税要。 ※内装(電装含む)はテナント様の工事負担となります。 ※トイレテナント内共有(浄化槽) 幹線道路沿いで目立ちます。 |
||
| 物件番号 | GN0033 |
|---|---|
| 所在地 | 出雲市渡橋町1177 |
| 種別 | 貸し事務所 |
| 構造 | 鉄骨造 |
| 建築年月 | |
| 間取り | 1K |
| 専有面積 | 103.23m² |
| 向き | 北 |
| 建物階数 | 2階建 |
| 駐車場 | 有(料金別) |
| 駐車料金 | |
| 所在階数 | 1階部 |
| 取引形態 | 仲介 |
| 仲介料 | 187,000円 |
| 敷き引き | |
| 保険料 | |
| 校区 | 四絡小・今市小 |
| 備考 | 賃料:187380円 消費税=202370円 借家人賠償保険:借主にて加入要 保証保険加入要:初回保証料は賃料の100% 更新料:0.8%(賃料と引き落としです。引落手数料有り) 共益費10000円要(内訳:警備保障代・共有電気代・共有水道代・共有部分清掃代) 仲介手数料187380円+消費税 ※駐車場料3000円/1台 ※別途消費税要。 ※内装(電装含む)はテナント様の工事負担となります。 ※トイレテナント内共有(浄化槽) 幹線道路沿いで目立ちます。 |
2916 since 2017-04-28
地図
この物件の周辺地図を開く取り扱い店舗
有限会社 はるか不動産販売
〒693-0004 島根県出雲市渡橋町820-1
[免許番号]島根県知事(5)第1031号
ホームページ:http://haruka-f.co.jp
営業時間:9:00〜18:00
定休日:不定休(ホームページまたはインスタグラムにて定休日カレンダーご参照ください。)
公益社団法人 全国宅地建物取引業保証協会会員
公益社団法人 全国宅地建物取引業協会会員
公益社団法人 島根県宅地建物取引業協会会員

- 0853-25-1023
ご連絡の際は「山陰不動産ナビを見た」と言うとスムーズです - FAX
- 0853-25-1070





















