| 賃料/共益費 7.5万円/ 礼金/敷金 1ヶ月/2ヶ月 現況 空室中 | この物件について問い合わせる |
- バス・トイレ別
- シャワー
- 給湯
- 洗面台
- 室内洗濯機置場
- フローリング
- 駐車2台可
- 倉庫
- リフォーム物件
- リノベーション物件
写真
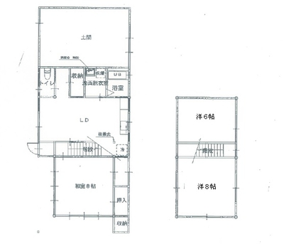
間取り図
物件詳細情報
| 物件番号 | GN0070 | 所在地 | 出雲市斐川町沖洲 |
|---|---|---|---|
| 種別 | 一戸建借家 | 構造 | 木造 |
| 建築年月 | 間取り | 3LDK | |
| 専有面積 | 向き | --- | |
| 建物階数 | 2階建 | 駐車場 | 有(料金込み) |
| 駐車料金 | 所在階数 | 戸建 | |
| 取引形態 | 仲介 | 仲介料 | 82,500円 |
| 敷き引き | |||
| 保険料 | 借家人賠償保険加入要する | ||
| 校区 | |||
| 備考 | ※弊社インスタグラムにて動画掲載中です。 保証会加入要します。保証人有り(初回)40%・保証人無し(初回)50% 1年毎更新料10000円要します。(更新料毎月払いの場合は800円+賃料+引落手数料300円) 家財保険借主にて加入要3610円〜(1年) 2019年5月初旬大規模リフォーム 駐車場2台 ガレージ(1台)※ガレージはセダンクラスのルーフの低い車両のみ駐車可能 カーポート1台分有り 2019年リフォーム内容 キッチン新品・ユニットバス新品・洋式トイレ新品・フローリング新品・クロス入り替え・畳表替え等 |
||
| 物件番号 | GN0070 |
|---|---|
| 所在地 | 出雲市斐川町沖洲 |
| 種別 | 一戸建借家 |
| 構造 | 木造 |
| 建築年月 | |
| 間取り | 3LDK |
| 専有面積 | |
| 向き | --- |
| 建物階数 | 2階建 |
| 駐車場 | 有(料金込み) |
| 駐車料金 | |
| 所在階数 | 戸建 |
| 取引形態 | 仲介 |
| 仲介料 | 82,500円 |
| 敷き引き | |
| 保険料 | 借家人賠償保険加入要する |
| 校区 | |
| 備考 | ※弊社インスタグラムにて動画掲載中です。 保証会加入要します。保証人有り(初回)40%・保証人無し(初回)50% 1年毎更新料10000円要します。(更新料毎月払いの場合は800円+賃料+引落手数料300円) 家財保険借主にて加入要3610円〜(1年) 2019年5月初旬大規模リフォーム 駐車場2台 ガレージ(1台)※ガレージはセダンクラスのルーフの低い車両のみ駐車可能 カーポート1台分有り 2019年リフォーム内容 キッチン新品・ユニットバス新品・洋式トイレ新品・フローリング新品・クロス入り替え・畳表替え等 |
2007 since 2019-04-27
取り扱い店舗
有限会社 はるか不動産販売
〒693-0004 島根県出雲市渡橋町820-1
[免許番号]島根県知事(5)第1031号
ホームページ:http://haruka-f.co.jp
営業時間:9:00〜18:00
定休日:不定休(ホームページまたはインスタグラムにて定休日カレンダーご参照ください。)
公益社団法人 全国宅地建物取引業保証協会会員
公益社団法人 全国宅地建物取引業協会会員
公益社団法人 島根県宅地建物取引業協会会員

- 0853-25-1023
ご連絡の際は「山陰不動産ナビを見た」と言うとスムーズです - FAX
- 0853-25-1070


























