| 賃料/共益費 9.3万円/5,000円 礼金/敷金 無し/2ヶ月 現況 空室中 | この物件について問い合わせる |
- 2階以上
- 角部屋
- 南向き
- ガスコンロ
- バス・トイレ別
- 洗浄便座
- 暖房便座
- シャワー
- エアコン
- 給湯
- 洗面台
- 室内洗濯機置場
- 駐輪場
- エレベータ
- バルコニ−
- 防犯カメラ
- 管理人常駐
- BSアンテナ
- 礼金ゼロ
- リフォーム物件
写真
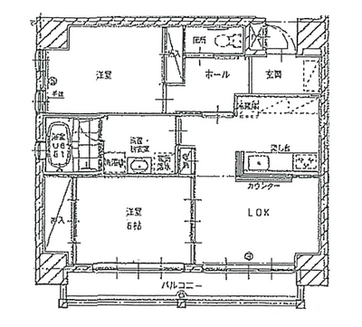
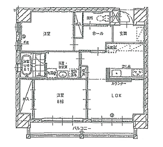
間取り図
物件詳細情報
| 物件番号 | GS0257 | 所在地 | 松江市天神町15番地 |
|---|---|---|---|
| 種別 | 賃貸マンション | 構造 | 鉄筋コンクリート造 |
| 建築年月 | 2005年8月 | 間取り | 2LDK |
| 専有面積 | 61.85m² | 向き | 南 |
| 建物階数 | 7階建 | 駐車場 | 有(料金別) |
| 駐車料金 | 12,000円 | 所在階数 | 5階部 |
| 取引形態 | 仲介 | 仲介料 | 102,300円 |
| 敷き引き | |||
| 保険料 | 20000(2年間) | ||
| 校区 | |||
| 備考 | 松江駅徒歩10分圏内のマンションでました!! 【家賃減額キャンペーン中!!】 3月中のご契約で賃料98000円⇒93000円にします! <おすすめポイント> ・水廻りが新品♪ ・キッチンが広く、ガスコンロ付き(都市ガス) ・お風呂に窓あり ・全部屋エアコン付き ・広々としたベランダ付き ・エレベーター付き ・バス停が近く利便性の良い立地 <ご契約条件・その他> ・保証会社加入要(初回保証料:賃料50%、更新保証料有り) ・駐車場は敷地内(12,000円/月) ※間取、設備等は現状を優先といたします。 (写真は同タイプ別の部屋) |
||
| 物件番号 | GS0257 |
|---|---|
| 所在地 | 松江市天神町15番地 |
| 種別 | 賃貸マンション |
| 構造 | 鉄筋コンクリート造 |
| 建築年月 | 2005年8月 |
| 間取り | 2LDK |
| 専有面積 | 61.85m² |
| 向き | 南 |
| 建物階数 | 7階建 |
| 駐車場 | 有(料金別) |
| 駐車料金 | 12,000円 |
| 所在階数 | 5階部 |
| 取引形態 | 仲介 |
| 仲介料 | 102,300円 |
| 敷き引き | |
| 保険料 | 20000(2年間) |
| 校区 | |
| 備考 | 松江駅徒歩10分圏内のマンションでました!! 【家賃減額キャンペーン中!!】 3月中のご契約で賃料98000円⇒93000円にします! <おすすめポイント> ・水廻りが新品♪ ・キッチンが広く、ガスコンロ付き(都市ガス) ・お風呂に窓あり ・全部屋エアコン付き ・広々としたベランダ付き ・エレベーター付き ・バス停が近く利便性の良い立地 <ご契約条件・その他> ・保証会社加入要(初回保証料:賃料50%、更新保証料有り) ・駐車場は敷地内(12,000円/月) ※間取、設備等は現状を優先といたします。 (写真は同タイプ別の部屋) |
127 since 2018-11-05
地図
この物件の周辺地図を開く取り扱い店舗
ユニティ不動産/株式会社UNITY
〒690-0064 島根県松江市天神町127番地2F
[免許番号]島根県知事(1)第1344号
◇営業時間 9:30〜18:30◇
水曜日・土曜日・日曜日・祝日も元気に営業しています(^^♪
松江の売買・賃貸物件のことなら何でも
お気軽にご相談ください!
※当社へご来店の際は、天神町13番地の時間貸し駐車場12〜14番をご利用くださいませ。

- 0852-61-8833
ご連絡の際は「山陰不動産ナビを見た」と言うとスムーズです - FAX
- 0852-61-8834





















