| 賃料/共益費 13万円/20,000円 礼金/敷金 1ヶ月/2ヶ月 現況 空室待ち(入居可能日:2026年07月01日) | この物件について問い合わせる |
- 1階の物件
- 洗浄便座
- エアコン
- 防犯カメラ
- リノベーション物件
- デザイナーズ物件
写真
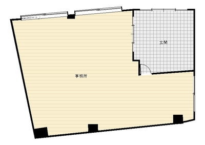
間取り図
物件詳細情報
| 物件番号 | GW0078 | 所在地 | 松江市津田町305番地 |
|---|---|---|---|
| 種別 | 貸し事務所 | 構造 | 鉄骨造 |
| 建築年月 | 間取り | 無該当 | |
| 専有面積 | 67.5m² | 向き | 東 |
| 建物階数 | 3階建 | 駐車場 | 有(料金込み) |
| 駐車料金 | 所在階数 | 1階部 | |
| 取引形態 | その他 | 仲介料 | 143,000円 |
| 敷き引き | |||
| 保険料 | |||
| 校区 | 中央小・松江3中 | ||
| 備考 | ☆松江駅から徒歩5分:駅チカ物件です。高級感溢れる内装に完成しました。 ☆全面道路がくにびき道路沿いなので便利です。看板を設置されたら宣伝効果抜群!!目立つので、お客様への案内もしやすいですね〜(看板設置の賃料は無料です) ☆前面ガラス張りの開放的スペース(店舗でも事務所でもOK! 放課後学童・塾・エステetc) ☆敷地内に駐車スペース1台以上(コンパクトカー)は確保できます。また、近隣に敷地外駐車場が多数ありますのでご紹介は可能です。 ☆設備:WiFi環境付、インターネットはすぐに対応できます。 ※別途、賃料・共益費に消費税がかかります。 https://asetpartners.net/ |
||
| 物件番号 | GW0078 |
|---|---|
| 所在地 | 松江市津田町305番地 |
| 種別 | 貸し事務所 |
| 構造 | 鉄骨造 |
| 建築年月 | |
| 間取り | 無該当 |
| 専有面積 | 67.5m² |
| 向き | 東 |
| 建物階数 | 3階建 |
| 駐車場 | 有(料金込み) |
| 駐車料金 | |
| 所在階数 | 1階部 |
| 取引形態 | その他 |
| 仲介料 | 143,000円 |
| 敷き引き | |
| 保険料 | |
| 校区 | 中央小・松江3中 |
| 備考 | ☆松江駅から徒歩5分:駅チカ物件です。高級感溢れる内装に完成しました。 ☆全面道路がくにびき道路沿いなので便利です。看板を設置されたら宣伝効果抜群!!目立つので、お客様への案内もしやすいですね〜(看板設置の賃料は無料です) ☆前面ガラス張りの開放的スペース(店舗でも事務所でもOK! 放課後学童・塾・エステetc) ☆敷地内に駐車スペース1台以上(コンパクトカー)は確保できます。また、近隣に敷地外駐車場が多数ありますのでご紹介は可能です。 ☆設備:WiFi環境付、インターネットはすぐに対応できます。 ※別途、賃料・共益費に消費税がかかります。 https://asetpartners.net/ |
7 since 2026-03-11
地図
この物件の周辺地図を開く取り扱い店舗
アセットパートナーズINC.
〒690-0852 島根県松江市千鳥町26番地2
[免許番号]島根県知事(2)第1262号
公益社団法人 全日本不動産協会会員
公益社団法人 不動産保証協会会員
中国地区不動産公正取引協議会会員

- 0852-67-6574
ご連絡の際は「山陰不動産ナビを見た」と言うとスムーズです - FAX
- 0852-67-6571


























