°ì¸Í·ú¼Ú²È
¡ù¡ú¸Í·ú¤ÆÄÂÂß¡ú¡ù¡¡°ì¿ÍÊë¤é¤·¤ËºÇŬ¡ª¸Í·ú¤ÆÊ¿²Èʪ·ï
| ÄÂÎÁ/¶¦±×Èñ 4.7Ëü±ß/¡¡¡¡ Îé¶â/Éß¶â ̵¤·/£³¥ö·î ¸½¶· ¶õ¼¼Ãæ | ¤³¤Îʪ·ï¤Ë¤Ä¤¤¤ÆÌ䤤¹ç¤ï¤»¤ë |
- £±³¬¤Îʪ·ï
- Æî¸þ¤
- ¥¬¥¹¥³¥ó¥í
- ¥Ð¥¹¡¦¥È¥¤¥ìÊÌ
- ¥·¥ã¥ï¡¼
- ¥¨¥¢¥³¥ó
- µëÅò
- ÀöÌÌÂæ
- ¼¼ÆâÀöÂõµ¡ÃÖ¾ì
- Ãó¼Ö£²Âæ²Ä
- ¥±¡¼¥Ö¥ë¥Æ¥ì¥Ó
- Îé¶â¥¼¥í
¼Ì¿¿
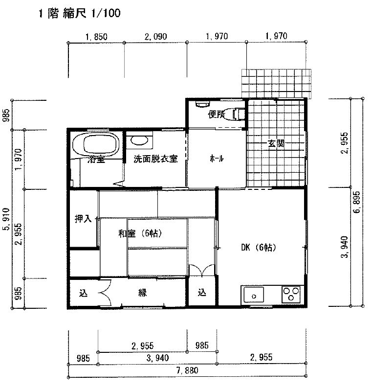
´Ö¼è¤ê¿Þ
ʪ·ï¾ÜºÙ¾ðÊó
| ʪ·ïÈÖ¹æ | HL0060 | ½êºßÃÏ | ¿Î¿·´±ü½Ð±ÀÄ®»°À®638-29 |
|---|---|---|---|
| ¼ïÊÌ | °ì¸Í·ú¼Ú²È | ¹½Â¤ | ÌÚ¤ |
| ·úÃÛǯ·î | 2003ǯ2·î | ´Ö¼è¤ê | £±£Ä£Ë |
| ÀìÍÌÌÀÑ | 50.45m² | ¸þ¤ | Æî |
| ·úʪ³¬¿ô | £±³¬·ú | Ãó¼Ö¾ì | Í¡ÊÎÁ¶â¹þ¤ß¡Ë |
| Ãó¼ÖÎÁ¶â | ¡¡¡¡ | ½êºß³¬¿ô | ¸Í·ú |
| ¼è°ú·ÁÂÖ | Ãç²ð | Ãç²ðÎÁ | 51,700±ß |
| Éߤ°ú¤ | |||
| Êݸ±ÎÁ | |||
| ¹»¶è | |||
| È÷¹Í | °ì¿ÍÊë¤é¤·¤ËºÇŬ¤Ê¥µ¥¤¥º¤ÎÊ¿²Èʪ·ï¤Ç¤¹¡£Æâ¸«´õ˾¤ÎÊý¤Ï¤¼¤Ò¤ªÌä¹ç¤»¤¯¤À¤µ¤¤¡£ ¢¨Æâ¸«¤Ë¤ÏÆüÄøÄ´À°¤¬É¬ÍפȤʤê¤Þ¤¹¡£¤ªÁá¤á¤Ë¤´Ï¢Íí¤¯¤À¤µ¤¤¡£ ¡Ú¤ª¤¹¤¹¤á¥Ý¥¤¥ó¥È¡Û ¡Î©ÃÏ ±Ø¤¬¶á¤¯¡¢ÍøÊØÀ¤ËÍ¥¤ì¤Æ¤¤¤Þ¤¹¡£¤Þ¤¿Æî¦¤Ë¤ÏÀþÏ©¤¬¤¢¤ê¡¢ºÎ¸÷¤â¤Ð¤Ã¤Á¤ê¤Ç¤¹¡ªÅż֤¬¹¥¤¤ÊÊý¤Ï¥ê¥Ó¥ó¥°¤ÎÁ뤫¤éį¤á¤ëÌÚ¼¡Àþ¤âºÇ¹â¤Ç¤¹¡£ ¢Ê¿²Èʪ·ï ´ÉÍý¤¬Íưפǿ͵¤¤ÎÊ¿²Èʪ·ï¤Ç¤¹¡ªÃÛǯ¿ô¤âÌó22ǯ¤È¤«¤Ê¤ê¿·¤·¤¤¤â¤Î¤Ç¤¹¡ª £ÀßÈ÷ ¥¬¥¹¥³¥ó¥í¡¢¥¨¥¢¥³¥ó£±ÂæÀßÃÖºÑ¤ß ¤´Ï¢Íí¤ªÂÔ¤Á¤·¤Æ¤¤¤Þ¤¹¡ª ¢¨¸½¶·¤È°Û¤Ê¤ë¾ì¹ç¤Ë¤Ï¸½¶·¤òÍ¥À褷¤Þ¤¹¡£ |
||
| ʪ·ïÈÖ¹æ | HL0060 |
|---|---|
| ½êºßÃÏ | ¿Î¿·´±ü½Ð±ÀÄ®»°À®638-29 |
| ¼ïÊÌ | °ì¸Í·ú¼Ú²È |
| ¹½Â¤ | ÌÚ¤ |
| ·úÃÛǯ·î | 2003ǯ2·î |
| ´Ö¼è¤ê | £±£Ä£Ë |
| ÀìÍÌÌÀÑ | 50.45m² |
| ¸þ¤ | Æî |
| ·úʪ³¬¿ô | £±³¬·ú |
| Ãó¼Ö¾ì | Í¡ÊÎÁ¶â¹þ¤ß¡Ë |
| Ãó¼ÖÎÁ¶â | ¡¡¡¡ |
| ½êºß³¬¿ô | ¸Í·ú |
| ¼è°ú·ÁÂÖ | Ãç²ð |
| Ãç²ðÎÁ | 51,700±ß |
| Éߤ°ú¤ | |
| Êݸ±ÎÁ | |
| ¹»¶è | |
| È÷¹Í | °ì¿ÍÊë¤é¤·¤ËºÇŬ¤Ê¥µ¥¤¥º¤ÎÊ¿²Èʪ·ï¤Ç¤¹¡£Æâ¸«´õ˾¤ÎÊý¤Ï¤¼¤Ò¤ªÌä¹ç¤»¤¯¤À¤µ¤¤¡£ ¢¨Æâ¸«¤Ë¤ÏÆüÄøÄ´À°¤¬É¬ÍפȤʤê¤Þ¤¹¡£¤ªÁá¤á¤Ë¤´Ï¢Íí¤¯¤À¤µ¤¤¡£ ¡Ú¤ª¤¹¤¹¤á¥Ý¥¤¥ó¥È¡Û ¡Î©ÃÏ ±Ø¤¬¶á¤¯¡¢ÍøÊØÀ¤ËÍ¥¤ì¤Æ¤¤¤Þ¤¹¡£¤Þ¤¿Æî¦¤Ë¤ÏÀþÏ©¤¬¤¢¤ê¡¢ºÎ¸÷¤â¤Ð¤Ã¤Á¤ê¤Ç¤¹¡ªÅż֤¬¹¥¤¤ÊÊý¤Ï¥ê¥Ó¥ó¥°¤ÎÁ뤫¤éį¤á¤ëÌÚ¼¡Àþ¤âºÇ¹â¤Ç¤¹¡£ ¢Ê¿²Èʪ·ï ´ÉÍý¤¬Íưפǿ͵¤¤ÎÊ¿²Èʪ·ï¤Ç¤¹¡ªÃÛǯ¿ô¤âÌó22ǯ¤È¤«¤Ê¤ê¿·¤·¤¤¤â¤Î¤Ç¤¹¡ª £ÀßÈ÷ ¥¬¥¹¥³¥ó¥í¡¢¥¨¥¢¥³¥ó£±ÂæÀßÃÖºÑ¤ß ¤´Ï¢Íí¤ªÂÔ¤Á¤·¤Æ¤¤¤Þ¤¹¡ª ¢¨¸½¶·¤È°Û¤Ê¤ë¾ì¹ç¤Ë¤Ï¸½¶·¤òÍ¥À褷¤Þ¤¹¡£ |
139 since 2023-11-25
¼è¤ê°·¤¤Å¹ÊÞ
¥ª¥¯¥ê¥ÎÉÔÆ°»º¡Ú³ô¼°²ñ¼Ò OKU-Reno.¡Û
¢©699-1513¡¡Å纬¸©¿Î¿·´±ü½Ð±ÀÄ®»°Âô499
[ÌȵöÈÖ¹æ]Å纬¸©Ãλö¡Ê2¡ËÂè1283¹æ
¡Ú¥Û¡¼¥à¥Ú¡¼¥¸¡Ûhttps://oku-reno.com/
¸ø±×¼ÒÃÄË¡¿Í¡¡Á´¹ñÂðÃÏ·úʪ¼è°ú¶ÈÊݾڶ¨²ñ²ñ°÷

- 0854-54-2455
¤´Ï¢Íí¤ÎºÝ¤Ï¡Ö»³±¢ÉÔÆ°»º¥Ê¥Ó¤ò¸«¤¿¡×¤È¸À¤¦¤È¥¹¥à¡¼¥º¤Ç¤¹ - FAX
- 0854-54-2455


























