| 賃料/共益費 4.31万円/ 礼金/敷金 無し/無し 現況 空室待ち(入居可能日:2026年05月27日) | この物件について問い合わせる |
- 2階以上
- 南向き
- バス・トイレ別
- 洗浄便座
- 追い炊き機能
- シャワー
- エアコン
- 給湯
- 洗面台
- 室内洗濯機置場
- フローリング
- 駐車2台可
- 駐輪場
- バイク置場
- バルコニ−
- ケーブルテレビ
- 学生可
- ペット相談可
- ルームシェア可
- 礼金ゼロ
- 敷金(保証金)ゼロ
- リフォーム物件
写真
間取り図
物件詳細情報
| 物件番号 | HL0102 | 所在地 | 仁多郡奥出雲町三成819-9 |
|---|---|---|---|
| 種別 | 賃貸マンション | 構造 | 鉄筋コンクリート造 |
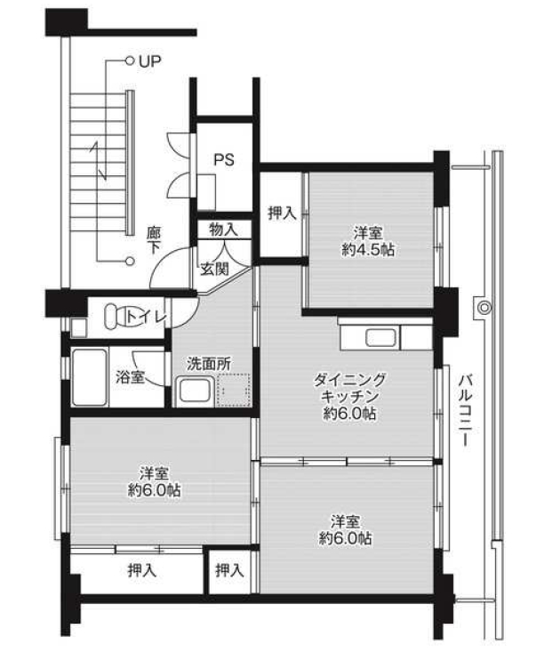
| 建築年月 | 1994年7月 | 間取り | 3DK |
| 専有面積 | 53.08m² | 向き | 南 |
| 建物階数 | 5階建 | 駐車場 | 有(料金別) |
| 駐車料金 | 2,750円 | 所在階数 | 3階部 |
| 取引形態 | 仲介 | 仲介料 | 0円 |
| 敷き引き | |||
| 保険料 | |||
| 校区 | 三成小学校、仁多中学校 | ||
| 備考 | ※※本物件は5/27以降、内見・入居可となります※※ リフォーム済み!(壁紙、ペンキ、畳の表替え、襖など) 風呂ガス給湯リフォーム済み、エアコン1台、温水洗浄便座設置済み! 3部屋フローリングにリフォームしてあります。 ※写真は別のお部屋になりますので、必ず内見をお願いいたします。 ※図面や写真が現況と異なる場合には現況を優先とします。 気になる方、ぜひお問合せ下さい! ★☆★☆★☆★☆★☆★☆★☆★☆★☆★☆★☆★ 敷金、礼金、保証人、仲介手数料不要! 3万円キャッシュバックキャンペーン実施中! 今だけフリーレント1か月キャンペーン中! ★☆★☆★☆★☆★☆★☆★☆★☆★☆★☆★☆★ ※原則、敷金・礼金・連帯保証人は不要ですが、審査の結果によっては敷金をお預かりする場合や連帯保証人をつけていただく場合がございます。 ※ペット飼育希望の場合には敷金1か月が必要です。 ※退去時、クリーニング費用として64226円(税込)がかかります。 ※短期解約違約金有 →1年未満の解約:賃料等の3か月分、2年未満の解約:賃料等の2か月分 ※借家人賠償保険加入義務有 ※法人契約の場合は条件が異なります。 |
||
| 物件番号 | HL0102 |
|---|---|
| 所在地 | 仁多郡奥出雲町三成819-9 |
| 種別 | 賃貸マンション |
| 構造 | 鉄筋コンクリート造 |
| 建築年月 | 1994年7月 |
| 間取り | 3DK |
| 専有面積 | 53.08m² |
| 向き | 南 |
| 建物階数 | 5階建 |
| 駐車場 | 有(料金別) |
| 駐車料金 | 2,750円 |
| 所在階数 | 3階部 |
| 取引形態 | 仲介 |
| 仲介料 | 0円 |
| 敷き引き | |
| 保険料 | |
| 校区 | 三成小学校、仁多中学校 |
| 備考 | ※※本物件は5/27以降、内見・入居可となります※※ リフォーム済み!(壁紙、ペンキ、畳の表替え、襖など) 風呂ガス給湯リフォーム済み、エアコン1台、温水洗浄便座設置済み! 3部屋フローリングにリフォームしてあります。 ※写真は別のお部屋になりますので、必ず内見をお願いいたします。 ※図面や写真が現況と異なる場合には現況を優先とします。 気になる方、ぜひお問合せ下さい! ★☆★☆★☆★☆★☆★☆★☆★☆★☆★☆★☆★ 敷金、礼金、保証人、仲介手数料不要! 3万円キャッシュバックキャンペーン実施中! 今だけフリーレント1か月キャンペーン中! ★☆★☆★☆★☆★☆★☆★☆★☆★☆★☆★☆★ ※原則、敷金・礼金・連帯保証人は不要ですが、審査の結果によっては敷金をお預かりする場合や連帯保証人をつけていただく場合がございます。 ※ペット飼育希望の場合には敷金1か月が必要です。 ※退去時、クリーニング費用として64226円(税込)がかかります。 ※短期解約違約金有 →1年未満の解約:賃料等の3か月分、2年未満の解約:賃料等の2か月分 ※借家人賠償保険加入義務有 ※法人契約の場合は条件が異なります。 |
1 since 2026-02-04
地図
この物件の周辺地図を開く取り扱い店舗
オクリノ不動産【株式会社 OKU-Reno.】
〒699-1513 島根県仁多郡奥出雲町三沢499
[免許番号]島根県知事(2)第1283号
【ホームページ】https://oku-reno.com/
公益社団法人 全国宅地建物取引業保証協会会員

- 0854-54-2455
ご連絡の際は「山陰不動産ナビを見た」と言うとスムーズです - FAX
- 0854-54-2455


























