| 賃料/共益費 7万円/ 礼金/敷金 1ヶ月/2ヶ月 現況 空室待ち(入居可能日:2026年01月31日) | この物件について問い合わせる |
- バス・トイレ別
- シャワー
- 洗面台
- 室内洗濯機置場
- フローリング
- クロ−ゼット
- 専用庭
- 即入居可
写真
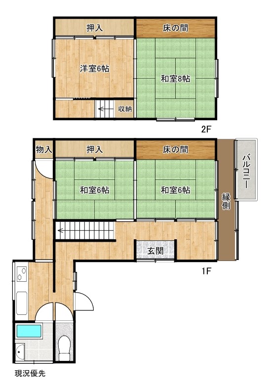
間取り図
物件詳細情報
| 物件番号 | HM0836 | 所在地 | 松江市石橋町(李白酒造近く) |
|---|---|---|---|
| 種別 | 一戸建借家 | 構造 | 木造 |
| 建築年月 | 間取り | 4DK | |
| 専有面積 | 96.95m² | 向き | --- |
| 建物階数 | 2階建 | 駐車場 | 有(料金別) |
| 駐車料金 | 所在階数 | 戸建 | |
| 取引形態 | 仲介 | 仲介料 | 77,000円 |
| 敷き引き | |||
| 保険料 | 2年18000円 | ||
| 校区 | |||
| 備考 | 松江市【橋北】での引越なら一軒家の「石橋借家」はいかがでしょうか。 階段数は多いですが、眺望良好なので、毎日眺めを楽しめます。 子育ての環境としても良好な、部屋数も多い一戸建ての物件となります。 お車は別途費用がかかりますが、2台止めて頂く事が可能です! 一度室内のチェックし物件の中を見てみませんか? あなたも家族も喜ぶ物件が見つかるチャンスです。 公営水道、公共下水、都市ガス、バス・トイレ別、2人入居可、室内洗濯機置場、独立洗面台、高齢者相談、閑静な住宅街、眺望良好、コンロ備品 *くらしーど24(2年)16500円 *内観写真と現状が異なる場合は、現状優先です。 |
||
| 物件番号 | HM0836 |
|---|---|
| 所在地 | 松江市石橋町(李白酒造近く) |
| 種別 | 一戸建借家 |
| 構造 | 木造 |
| 建築年月 | |
| 間取り | 4DK |
| 専有面積 | 96.95m² |
| 向き | --- |
| 建物階数 | 2階建 |
| 駐車場 | 有(料金別) |
| 駐車料金 | |
| 所在階数 | 戸建 |
| 取引形態 | 仲介 |
| 仲介料 | 77,000円 |
| 敷き引き | |
| 保険料 | 2年18000円 |
| 校区 | |
| 備考 | 松江市【橋北】での引越なら一軒家の「石橋借家」はいかがでしょうか。 階段数は多いですが、眺望良好なので、毎日眺めを楽しめます。 子育ての環境としても良好な、部屋数も多い一戸建ての物件となります。 お車は別途費用がかかりますが、2台止めて頂く事が可能です! 一度室内のチェックし物件の中を見てみませんか? あなたも家族も喜ぶ物件が見つかるチャンスです。 公営水道、公共下水、都市ガス、バス・トイレ別、2人入居可、室内洗濯機置場、独立洗面台、高齢者相談、閑静な住宅街、眺望良好、コンロ備品 *くらしーど24(2年)16500円 *内観写真と現状が異なる場合は、現状優先です。 |
18 since 2025-11-20
地図
この物件の周辺地図を開く取り扱い店舗
【朝日住宅】賃貸仲介専門店
〒690-0017 島根県松江市西津田5丁目2-20
[免許番号]島根県知事(6)第930号
〜松江市トップクラスの仲介実績〜
〇管理物件入居率:95%越え
〇管理戸数:4600戸を突破
〇年間仲介件数:1120件越え
〇公益社団法人 全国宅地建物取引業保証協会会員
〇公益社団法人 島根県宅地建物取引業協会会員
〇一般社団法人 全国賃貸不動産管理業協会

- 0852-67-7321
ご連絡の際は「山陰不動産ナビを見た」と言うとスムーズです - FAX
- 0852-67-7322


























