Âߤ·Å¹ÊÞ
Å϶¶Grace IV
| ÄÂÎÁ/¶¦±×Èñ 15.4Ëü±ß/2,200±ß Îé¶â/Éß¶â £±¥ö·î/£³¥ö·î ¸½¶· ¶õ¼¼Ãæ | ¤³¤Îʪ·ï¤Ë¤Ä¤¤¤ÆÌ䤤¹ç¤ï¤»¤ë |
- £±³¬¤Îʪ·ï
- Æî¸þ¤
¼Ì¿¿
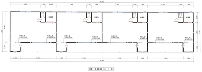
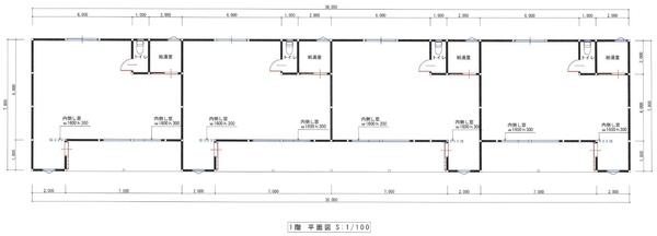
´Ö¼è¤ê¿Þ
ʪ·ï¾ÜºÙ¾ðÊó
| ʪ·ïÈÖ¹æ | IK0906 | ½êºßÃÏ | ½Ð±À»ÔÅ϶¶Ä®417ÈÖÃÏ1 |
|---|---|---|---|
| ¼ïÊÌ | Âߤ·Å¹ÊÞ | ¹½Â¤ | ÌÚ¤ |
| ·úÃÛǯ·î | 2025ǯ10·î | ´Ö¼è¤ê | ¤½¤Î¾ |
| ÀìÍÌÌÀÑ | 57.6m² | ¸þ¤ | Æî |
| ·úʪ³¬¿ô | £±³¬·ú | Ãó¼Ö¾ì | Í¡ÊÎÁ¶âÊÌ¡Ë |
| Ãó¼ÖÎÁ¶â | ¡¡¡¡ | ½êºß³¬¿ô | £±³¬Éô |
| ¼è°ú·ÁÂÖ | Ãç²ð | Ãç²ðÎÁ | 154,000±ß |
| Éߤ°ú¤ | |||
| Êݸ±ÎÁ | È÷¹ÍÍó»²¾È | ||
| ¹»¶è | |||
| È÷¹Í | ½Ð±À»ÔÅ϶¶Ä®(¥¤¥ª¥óÉÕ¶á¡Ë¤Î¿·ÃÛ»ö¶ÈÍѥƥʥó¥È¤Ç¤¹¡£¡¡ÏÂÉ÷¤¤ê¤Î¥Æ¥Ê¥ó¥È¤ÇÍî¤ÁÃ夤¤¿Ê·°Ïµ¤¤ÎŹÊޤǤ¹¡£¤Þ¤¿¡¢Æî¤Ï¹ñÆ»184¹æÀþ¡¢Ë̤ϹñÆ»9¹æÀþ¡Ê½Ð±À¥Ð¥¤¥Ñ¥¹¡Ë¤Ë¶á¤¯¸òÄÌÍøÊØÀ¤ËÍ¥¤ì¤Þ¤¹¡£ ÄÂÂßÊÝ¾ÚÆâÍÆ¡§ÄÂÂßÊݾڲñ¼Ò¡¡³ô¼°²ñ¼ÒUSEN¡¡TRUST¡¢½é²óÊݾÚÎÁ¡¡ÄÂÎÁ100¡ó ²ÈºâÊݸ±ÎÁ : 22500±ß¡¡ Ãó¼Ö¾ì¡§Á´20Âæ¡ÊÆâ2Âæ¸ÇÄê°Ê³°¶¦Í¡Ë |
||
| ʪ·ïÈÖ¹æ | IK0906 |
|---|---|
| ½êºßÃÏ | ½Ð±À»ÔÅ϶¶Ä®417ÈÖÃÏ1 |
| ¼ïÊÌ | Âߤ·Å¹ÊÞ |
| ¹½Â¤ | ÌÚ¤ |
| ·úÃÛǯ·î | 2025ǯ10·î |
| ´Ö¼è¤ê | ¤½¤Î¾ |
| ÀìÍÌÌÀÑ | 57.6m² |
| ¸þ¤ | Æî |
| ·úʪ³¬¿ô | £±³¬·ú |
| Ãó¼Ö¾ì | Í¡ÊÎÁ¶âÊÌ¡Ë |
| Ãó¼ÖÎÁ¶â | ¡¡¡¡ |
| ½êºß³¬¿ô | £±³¬Éô |
| ¼è°ú·ÁÂÖ | Ãç²ð |
| Ãç²ðÎÁ | 154,000±ß |
| Éߤ°ú¤ | |
| Êݸ±ÎÁ | È÷¹ÍÍó»²¾È |
| ¹»¶è | |
| È÷¹Í | ½Ð±À»ÔÅ϶¶Ä®(¥¤¥ª¥óÉÕ¶á¡Ë¤Î¿·ÃÛ»ö¶ÈÍѥƥʥó¥È¤Ç¤¹¡£¡¡ÏÂÉ÷¤¤ê¤Î¥Æ¥Ê¥ó¥È¤ÇÍî¤ÁÃ夤¤¿Ê·°Ïµ¤¤ÎŹÊޤǤ¹¡£¤Þ¤¿¡¢Æî¤Ï¹ñÆ»184¹æÀþ¡¢Ë̤ϹñÆ»9¹æÀþ¡Ê½Ð±À¥Ð¥¤¥Ñ¥¹¡Ë¤Ë¶á¤¯¸òÄÌÍøÊØÀ¤ËÍ¥¤ì¤Þ¤¹¡£ ÄÂÂßÊÝ¾ÚÆâÍÆ¡§ÄÂÂßÊݾڲñ¼Ò¡¡³ô¼°²ñ¼ÒUSEN¡¡TRUST¡¢½é²óÊݾÚÎÁ¡¡ÄÂÎÁ100¡ó ²ÈºâÊݸ±ÎÁ : 22500±ß¡¡ Ãó¼Ö¾ì¡§Á´20Âæ¡ÊÆâ2Âæ¸ÇÄê°Ê³°¶¦Í¡Ë |
15 since 2026-04-10
¼è¤ê°·¤¤Å¹ÊÞ
³ô¼°²ñ¼Ò½Ð±À¥È¡¼¥¿¥ëÉÔÆ°»º
¢©693-0015¡¡Å纬¸©½Ð±À»ÔÂçÄÅÄ«ÁÒ2ÃúÌÜ3ÈÖÃÏ2
[ÌȵöÈÖ¹æ]Å纬¸©Ãλö¡Ê4¡ËÂè1174¹æ
±Ä¶È»þ´Ö
9:00〜18:00
ÅÚÆü¤Ï»þû±Ä¶È¤Ë¤Ê¤ê¤Þ¤¹(10:00~16:00)
ÄêµÙÆü
¿åÍËÆü¡¡Ç¯Ëöǯ»Ï¡¡½Ëº×Æü¡¡²Æµ¨¡ÊËß¡Ë
½ê°ÃÄÂÎ̾
¡Ê¸ø¼Ò¡ËÁ´¹ñÂðÃÏ·úʪ¼è°ú¶ÈÊݾڶ¨²ñ
¡Ê¸ø¼Ò¡ËÅ纬¸©ÂðÃÏ·úʪ¼è°ú¶È¶¨²ñ
Á´¹ñÄÂÂß´ÉÍý¥Ó¥¸¥Í¥¹¶¨²ñ
½ê°¸øÀµ¼è°ú¶¨µÄ²ñ
Ãæ¹ñÃ϶èÉÔÆ°»º¸øÀµ¼è°ú¶¨µÄ²ñ
¡Ê¸øºâ¡ËÆüËÜÄÂÂß½»Âð´ÉÍý¶¨²ñ
êJPMC¥Ñ¡¼¥È¥Ê¡¼
¡Ê°ì¼Ò¡ËÁ´¹ñÄÂÂßÉÔÆ°»º´ÉÍý¶È¶¨²ñ

- 0853-31-6622
¤´Ï¢Íí¤ÎºÝ¤Ï¡Ö»³±¢ÉÔÆ°»º¥Ê¥Ó¤ò¸«¤¿¡×¤È¸À¤¦¤È¥¹¥à¡¼¥º¤Ç¤¹ - FAX
- 0853-23-1547

















