Ãæ¸Å°ì¸Í·ú½»Âð

»°Åá²°Ä®²µ²ÃµÜ¡¡Ãæ¸Å½»Âð¡¡¡ùÃͲ¼¤²¤·¤Þ¤·¤¿¡ù

¤ªµ¤¤ËÆþ¤ê¤ËÄɲà °õºþ²èÌ̤ò³«¤¯

²Á³Ê 500Ëü±ß ¸ò¾Ä¾õ¶· ÈÎÇäÃæ ¸½¶· ¶õ¼¼Ãæ ¤³¤Îʪ·ï¤Ë¤Ä¤¤¤ÆÌ䤤¹ç¤ï¤»¤ë
  • Îä˼
  • ¥¨¥¢¥³¥ó
  • µëÅò
  • £Ã£Á£Ô£Ö
  • ¼ýǼ¥¹¥Ú¡¼¥¹
  • ¾²²¼¼ýǼ
  • Àö¾ôÊØºÂ
  • ÃÈË¼ÊØºÂ
  • ¥Õ¥í¡¼¥ê¥ó¥°
  • ÁÒ¸Ë
  • ÀìÍÑÄí
  • TV¥â¥Ë¥¿¡¼¥Õ¥©¥ó
  • Íá¼¼´¥Áç
  • ¥Ú¥Ã¥ÈÁêÃ̲Ä
  • ³Ú´ïÁêÃ̲Ä
  • ÆüÅö¤¿¤êÎɹ¥
  • ´×ÀŽ»ÂðÃÏ
  • Ãó¼Ö¾ì£²Âæ°Ê¾å

¼Ì¿¿ ¼Ì¿¿¤ò¥¯¥ê¥Ã¥¯¤¹¤ë¤ÈÂ礭¤¯É½¼¨¤µ¤ì¤Þ¤¹¡£

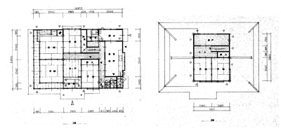
´Ö¼è¤ê¿Þ

¼Ì¿¿

´Ö¼è¤ê¿Þ

ʪ·ï¾ÜºÙ¾ðÊó

ʪ·ïÈÖ¹æ ES0050 ½êºßÃÏ ±ÀÆî»Ô»°Åá²°Ä®²µ²ÃµÜ¡¡³°13É®
¼ïÊÌ Ãæ¸Å°ì¸Í·ú½»Â𠹽¤ ÌÚ¤£²³¬·ú
´Ö¼è¤ê £¶£Ë°Ê¾å ·úÃÛǯ·î 1989ǯ3·î
·úʪÌÌÀÑ 193.77­Ö¡Ê58.62ÄÚ¡Ë ÅÚÃÏÌÌÀÑ 849.57­Ö¡Ê256.99ÄÚ¡Ë
»äÆ»ÌÌÀÑ ·ú¤Ú¤¤Î¨
ÍÆÀÑΨ ÀÜÆ»¾õ¶·
Êݾڶ⡦Éß¶â ¸¢Íø¶â
¤½¤Î¾°ì»þ¶â ¼êÉÕ¶â¡§100Ëü±ß Ãó¼Ö¾ì Í­(ÎÁ¶â¹þ¤ß)
Ãó¼Ö¾ìÀâÌÀ ¼Ö¸Ë¡¢ÀìÍÑÄí ¶è²èÈÖ¹æ
¼è°ú·ÁÂÖ ÇÞ²ð ÅÚÃϸ¢Íø ½êÍ­¸¢
¹ñÅÚË¡ÆÏ½Ð ÉÔÍ× ±èÀþ¸òÄÌ £Ê£Ò
°úÅϤ· ÁêÃÌ ÃÏÌÜ ÂðÃÏ
ÅÔ»Ô·×²è ¤½¤Î¾ ÍÑÅÓÃÏ°è »ØÄê¤Ê¤·
ÃÏÌÜÀâÌÀ ÂðÃÏ¡¢Èª¡¢ÅÄ¡¢¸¶Ìî¡¢»³ÎÓ
°Ý»ý´ÉÍýÈñÅù
¼ÚÃÏ´ü´Ö¡¦ÃÏÂå
ÃÏÀª
´ÉÍý·ÁÂÖ¡¢¾ò·ïÅù
ºÇ´ó±Ø JRÌÚ¼¡Àþ¡ÖÌÚ¼¡±Ø¡×¤Þ¤Ç7.5km
¥Ð¥¹Åù¸òÄ̼êÃÊ ±ÀÆî»Ô̱¥Ð¥¹¡ÖÆé»³¡×¤Þ¤Ç220m
¹»¶è Æé»³¾®³Ø¹»¡¡»°Åá²°Ãæ³Ø¹»
¾Ò²ð¥µ¥¤¥È
¹­¹ðÍ­¸ú´ü´Ö
´Ö¼è¤êÆâÌõ ¸¼´Ø¡¢DK¡¢Ï¼¼¡¢Íá¼¼¡¢Ã¦°á¼¼¡¢¥È¥¤¥ì¡¢²¡Æþ
È÷¹Í ¡ÔÅÚÃϾܺ١Õ
¢¡ÂðÃÏ¡Ê2É®¡Ë1525.88­Ö¡¡¢¡Èª¡Ê4É®¡Ë1472­Ö
¢¡ÅÄ¡Ê2É®¡Ë1547­Ö¡¡¢¡¸¶Ìî¡Ê2É®¡Ë198­Ö
¢¡»³ÎÓ¡Ê4É®¡Ë¡§3433­Ö
¢¨ÇÀÃϤΤ¿¤á¼èÆÀ¤Ë¾ò·ï¤¢¤ê

¡Ô·úʪ¾ÜºÙ¡Õ
¸¼´Ø¡¢DK¡¢Íá¼¼¡¢Ã¦°á¼¼¡¢¥È¥¤¥ì¡¢²¡Æþ¡¢±ï¦¡¢ÅÚ´Ö
ϼ¼8Ä¡­¢¡¢Ï¼¼6Ä¡­¤¡¢²°º¬Î¢¼ýǼ¡¢¼Ö¸Ë

¡ÔÀßÈ÷¾õ¶·¡Õ¡¡¡úºîư̤³Îǧ
¢¡µëÅò´ï¡§ÅôÌý¥Ü¥¤¥é¡¼
¢¡¥³¥ó¥í¡§£É£È¥¯¥Ã¥­¥ó¥°¥Ò¡¼¥¿¡¼¡Ê100V¡¢¥³¥ó¥í¤¢¤ê¡Ë
¢¡Íá¼¼¡§¥æ¥Ë¥Ã¥È¥Ð¥¹
¢¡¥È¥¤¥ì¡§Íμ°¥È¥¤¥ì¡¢Ã˻ҥȥ¤¥ì¡ÊÍ×½¤Á¶¡Ë¡¢³°Éô¥È¥¤¥ì
¢¡¥¨¥¢¥³¥ó¡§1Âæ
¢¡¼Ö¸Ë¡§1ÂæÊ¬¡Ê¥·¥ã¥Ã¥¿¡¼ÇË»¡¦°úÅϤ·¤Þ¤Ç¤Ë¼è³°¤·¡Ë

¡Ô¼þÊմĶ­¡Õ
¢¡¥¹¡¼¥Ñ¡¼¡§¤ß¤·¤Þ¤ä»°ÅᲰŹ¤Þ¤Ç6.2km
¢¡¥³¥ó¥Ó¥Ë¡§¥í¡¼¥½¥ó»°Åá²°ÌÚ¼¡¥¤¥ó¥¿¡¼Å¹¤Þ¤Ç5.5km
¢¡É±¡¡§Ê¿À®µ­Ç°É±¡¤Þ¤Ç5.5km
¢¡³Ø¹»¡§Æé»³¾®³Ø¹»¤Þ¤Ç1.1km¡¢»°Åá²°Ãæ³Ø¹»¤Þ¤Ç3.5km

¡ù¡ú¡ù¡ú¡ù ¸½Ãϸ«³Ø¤Ç¤­¤Þ¤¹¡£»öÁ°¤Ë¤´Ï¢Íí¤ò¤ª´ê¤¤¤¤¤¿¤·¤Þ¤¹¡£ ¡ù¡ú¡ù¡ú¡ù
ʪ·ïÈÖ¹æ ES0050
½êºßÃÏ ±ÀÆî»Ô»°Åá²°Ä®²µ²ÃµÜ¡¡³°13É®
¼ïÊÌ Ãæ¸Å°ì¸Í·ú½»Âð
¹½Â¤ ÌÚ¤£²³¬·ú
´Ö¼è¤ê £¶£Ë°Ê¾å
·úÃÛǯ·î 1989ǯ3·î
·úʪÌÌÀÑ 193.77­Ö¡Ê58.62ÄÚ¡Ë
ÅÚÃÏÌÌÀÑ 849.57­Ö¡Ê256.99ÄÚ¡Ë
»äÆ»ÌÌÀÑ
·ú¤Ú¤¤Î¨
ÍÆÀÑΨ
ÀÜÆ»¾õ¶·
Êݾڶ⡦Éß¶â
¸¢Íø¶â
¤½¤Î¾°ì»þ¶â ¼êÉÕ¶â¡§100Ëü±ß
Ãó¼Ö¾ì Í­(ÎÁ¶â¹þ¤ß)
Ãó¼Ö¾ìÀâÌÀ ¼Ö¸Ë¡¢ÀìÍÑÄí
¶è²èÈÖ¹æ
¼è°ú·ÁÂÖ ÇÞ²ð
ÅÚÃϸ¢Íø ½êÍ­¸¢
¹ñÅÚË¡ÆÏ½Ð ÉÔÍ×
±èÀþ¸òÄÌ £Ê£Ò
°úÅϤ· ÁêÃÌ
ÃÏÌÜ ÂðÃÏ
ÅÔ»Ô·×²è ¤½¤Î¾
ÍÑÅÓÃÏ°è »ØÄê¤Ê¤·
ÃÏÌÜÀâÌÀ ÂðÃÏ¡¢Èª¡¢ÅÄ¡¢¸¶Ìî¡¢»³ÎÓ
°Ý»ý´ÉÍýÈñÅù
¼ÚÃÏ´ü´Ö¡¦ÃÏÂå
ÃÏÀª
´ÉÍý·ÁÂÖ¡¢¾ò·ïÅù
ºÇ´ó±Ø JRÌÚ¼¡Àþ¡ÖÌÚ¼¡±Ø¡×¤Þ¤Ç7.5km
¥Ð¥¹Åù¸òÄ̼êÃÊ ±ÀÆî»Ô̱¥Ð¥¹¡ÖÆé»³¡×¤Þ¤Ç220m
¹»¶è Æé»³¾®³Ø¹»¡¡»°Åá²°Ãæ³Ø¹»
¾Ò²ð¥µ¥¤¥È
¹­¹ðÍ­¸ú´ü´Ö
´Ö¼è¤êÆâÌõ ¸¼´Ø¡¢DK¡¢Ï¼¼¡¢Íá¼¼¡¢Ã¦°á¼¼¡¢¥È¥¤¥ì¡¢²¡Æþ
È÷¹Í ¡ÔÅÚÃϾܺ١Õ
¢¡ÂðÃÏ¡Ê2É®¡Ë1525.88­Ö¡¡¢¡Èª¡Ê4É®¡Ë1472­Ö
¢¡ÅÄ¡Ê2É®¡Ë1547­Ö¡¡¢¡¸¶Ìî¡Ê2É®¡Ë198­Ö
¢¡»³ÎÓ¡Ê4É®¡Ë¡§3433­Ö
¢¨ÇÀÃϤΤ¿¤á¼èÆÀ¤Ë¾ò·ï¤¢¤ê

¡Ô·úʪ¾ÜºÙ¡Õ
¸¼´Ø¡¢DK¡¢Íá¼¼¡¢Ã¦°á¼¼¡¢¥È¥¤¥ì¡¢²¡Æþ¡¢±ï¦¡¢ÅÚ´Ö
ϼ¼8Ä¡­¢¡¢Ï¼¼6Ä¡­¤¡¢²°º¬Î¢¼ýǼ¡¢¼Ö¸Ë

¡ÔÀßÈ÷¾õ¶·¡Õ¡¡¡úºîư̤³Îǧ
¢¡µëÅò´ï¡§ÅôÌý¥Ü¥¤¥é¡¼
¢¡¥³¥ó¥í¡§£É£È¥¯¥Ã¥­¥ó¥°¥Ò¡¼¥¿¡¼¡Ê100V¡¢¥³¥ó¥í¤¢¤ê¡Ë
¢¡Íá¼¼¡§¥æ¥Ë¥Ã¥È¥Ð¥¹
¢¡¥È¥¤¥ì¡§Íμ°¥È¥¤¥ì¡¢Ã˻ҥȥ¤¥ì¡ÊÍ×½¤Á¶¡Ë¡¢³°Éô¥È¥¤¥ì
¢¡¥¨¥¢¥³¥ó¡§1Âæ
¢¡¼Ö¸Ë¡§1ÂæÊ¬¡Ê¥·¥ã¥Ã¥¿¡¼ÇË»¡¦°úÅϤ·¤Þ¤Ç¤Ë¼è³°¤·¡Ë

¡Ô¼þÊմĶ­¡Õ
¢¡¥¹¡¼¥Ñ¡¼¡§¤ß¤·¤Þ¤ä»°ÅᲰŹ¤Þ¤Ç6.2km
¢¡¥³¥ó¥Ó¥Ë¡§¥í¡¼¥½¥ó»°Åá²°ÌÚ¼¡¥¤¥ó¥¿¡¼Å¹¤Þ¤Ç5.5km
¢¡É±¡¡§Ê¿À®µ­Ç°É±¡¤Þ¤Ç5.5km
¢¡³Ø¹»¡§Æé»³¾®³Ø¹»¤Þ¤Ç1.1km¡¢»°Åá²°Ãæ³Ø¹»¤Þ¤Ç3.5km

¡ù¡ú¡ù¡ú¡ù ¸½Ãϸ«³Ø¤Ç¤­¤Þ¤¹¡£»öÁ°¤Ë¤´Ï¢Íí¤ò¤ª´ê¤¤¤¤¤¿¤·¤Þ¤¹¡£ ¡ù¡ú¡ù¡ú¡ù
1806 since 2025-08-22

¼è¤ê°·¤¤Å¹ÊÞ

Í­¸Â²ñ¼Ò¡¡±Ñ(¤Ï¤Ê¤Ö¤µ)¹©Ì³Å¹

¢©690-2404¡¡Å纬¸©±ÀÆî»Ô»°Åá²°Ä®»°Åá²°24-8
[ÌȵöÈÖ¹æ]Å纬¸©Ãλö¡Ê6¡ËÂè1010¹æ
¸ø±×¼ÒÃÄË¡¿Í Á´ÆüËÜÉÔÆ°»º¶¨²ñ²ñ°÷
¸ø±×¼ÒÃÄË¡¿Í ÉÔÆ°»ºÊݾڶ¨²ñ²ñ°÷

TEL
0854-45-5755
¤´Ï¢Íí¤ÎºÝ¤Ï¡Ö»³±¢ÉÔÆ°»º¥Ê¥Ó¤ò¸«¤¿¡×¤È¸À¤¦¤È¥¹¥à¡¼¥º¤Ç¤¹
FAX
0854-45-5758

¤³¤ÎŹÊޤξܺ٤ò¸«¤ë