»ö̳½ê¡¦Å¹ÊÞ
¡ù¡ú¹ñÆ»314¹æÀþ±è¤¤¡ú¡ù¹¥Î©ÃÏ¡¦ÉßÃϤ⹤¤Å¹ÊÞʪ·ï
| ²Á³Ê 1,900Ëü±ß ¸ò¾Ä¾õ¶· ÈÎÇäÃæ ¸½¶· ¶õ¼¼Ãæ | ¤³¤Îʪ·ï¤Ë¤Ä¤¤¤ÆÌ䤤¹ç¤ï¤»¤ë |
- ¥×¥í¥Ñ¥ó¥¬¥¹
- ¥¨¥¢¥³¥ó
- µëÅò
- £Ã£Á£Ô£Ö
- Àö¾ôÊØºÂ
- ÃóÎØ¾ì
¼Ì¿¿
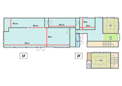
´Ö¼è¤ê¿Þ
ʪ·ï¾ÜºÙ¾ðÊó
1349 since 2025-07-18
¼è¤ê°·¤¤Å¹ÊÞ
¥ª¥¯¥ê¥ÎÉÔÆ°»º¡Ú³ô¼°²ñ¼Ò OKU-Reno.¡Û
¢©699-1513¡¡Å纬¸©¿Î¿·´±ü½Ð±ÀÄ®»°Âô499
[ÌȵöÈÖ¹æ]Å纬¸©Ãλö¡Ê2¡ËÂè1283¹æ
¡Ú¥Û¡¼¥à¥Ú¡¼¥¸¡Ûhttps://oku-reno.com/
¸ø±×¼ÒÃÄË¡¿Í¡¡Á´¹ñÂðÃÏ·úʪ¼è°ú¶ÈÊݾڶ¨²ñ²ñ°÷

- 0854-54-2455
¤´Ï¢Íí¤ÎºÝ¤Ï¡Ö»³±¢ÉÔÆ°»º¥Ê¥Ó¤ò¸«¤¿¡×¤È¸À¤¦¤È¥¹¥à¡¼¥º¤Ç¤¹ - FAX
- 0854-54-2455


























