¥¢¥Ñ¡¼¥È¡¢¥³¡¼¥Ý
¿À¸îÅĶ
| ÄÂÎÁ/¶¦±×Èñ 5.2Ëü±ß/¡¡¡¡ Îé¶â/Éß¶â ̵¤·/£±¥ö·î ¸½¶· ¶õ¼¼Ãæ | ¤³¤Îʪ·ï¤Ë¤Ä¤¤¤ÆÌ䤤¹ç¤ï¤»¤ë |
- ¥¬¥¹¥³¥ó¥í
- ¥Ð¥¹¡¦¥È¥¤¥ìÊÌ
- ¥¨¥¢¥³¥ó
- ¥Õ¥í¡¼¥ê¥ó¥°
¼Ì¿¿
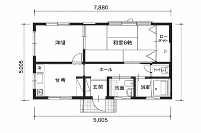
´Ö¼è¤ê¿Þ
ʪ·ï¾ÜºÙ¾ðÊó
| ʪ·ïÈÖ¹æ | AL0006 | ½êºßÃÏ | ¾¾¹¾»ÔÉÍǵÌÚ£µÃúÌÜ4-33 |
|---|---|---|---|
| ¼ïÊÌ | ¥¢¥Ñ¡¼¥È¡¢¥³¡¼¥Ý | ¹½Â¤ | Å´¹ü¤ |
| ·úÃÛǯ·î | ¡¡¡¡ | ´Ö¼è¤ê | £²£Ì£Ä£Ë |
| ÀìÍÌÌÀÑ | 34.3m² | ¸þ¤ | Æî |
| ·úʪ³¬¿ô | £²³¬·ú | Ãó¼Ö¾ì | Í¡ÊÎÁ¶âÊÌ¡Ë |
| Ãó¼ÖÎÁ¶â | 3,000±ß | ½êºß³¬¿ô | £²³¬Éô |
| ¼è°ú·ÁÂÖ | Ãç²ð | Ãç²ðÎÁ | ¡¡¡¡ |
| Éߤ°ú¤ | |||
| Êݸ±ÎÁ | |||
| ¹»¶è | |||
| È÷¹Í | |||
| ʪ·ïÈÖ¹æ | AL0006 |
|---|---|
| ½êºßÃÏ | ¾¾¹¾»ÔÉÍǵÌÚ£µÃúÌÜ4-33 |
| ¼ïÊÌ | ¥¢¥Ñ¡¼¥È¡¢¥³¡¼¥Ý |
| ¹½Â¤ | Å´¹ü¤ |
| ·úÃÛǯ·î | ¡¡¡¡ |
| ´Ö¼è¤ê | £²£Ì£Ä£Ë |
| ÀìÍÌÌÀÑ | 34.3m² |
| ¸þ¤ | Æî |
| ·úʪ³¬¿ô | £²³¬·ú |
| Ãó¼Ö¾ì | Í¡ÊÎÁ¶âÊÌ¡Ë |
| Ãó¼ÖÎÁ¶â | 3,000±ß |
| ½êºß³¬¿ô | £²³¬Éô |
| ¼è°ú·ÁÂÖ | Ãç²ð |
| Ãç²ðÎÁ | ¡¡¡¡ |
| Éߤ°ú¤ | |
| Êݸ±ÎÁ | |
| ¹»¶è | |
| È÷¹Í |
9 since 2026-02-21
¼è¤ê°·¤¤Å¹ÊÞ
ÂçÅÄÉÔÆ°»ºÍ¸Â²ñ¼Ò
¢©690-0044¡¡Å纬¸©¾¾¹¾»ÔÉÍǵÌÚ¸ÞÃúÌÜ£¹ÈÖ£¶£±¹æ
[ÌȵöÈÖ¹æ]Å纬¸©Ãλö(£±£·)Â裲£³¹æ
¡Ê¸ø¼Ò¡ËÅ纬¸©ÂðÃÏ·úʪ¼è°ú¶È¶¨²ñ
¤¨¤Ó¤¹·ú¶ñ¡¦ÆâÁõ¤È¤·¤ÆÆâÁõ¹©»ö¤â¾µ¤Ã¤Æ¤ª¤ê¤Þ¤¹¡£

- 090-6566-8514
¤´Ï¢Íí¤ÎºÝ¤Ï¡Ö»³±¢ÉÔÆ°»º¥Ê¥Ó¤ò¸«¤¿¡×¤È¸À¤¦¤È¥¹¥à¡¼¥º¤Ç¤¹ - FAX
- 050-3094-7492


























