| 賃料/共益費 4.5万円/ 礼金/敷金 無し/2ヶ月 現況 空室中 | この物件について問い合わせる |
- 2階以上
- バス・トイレ別
- 洗浄便座
- シャワー
- エアコン
- 室内洗濯機置場
- ケーブルテレビ
- 即入居可
写真
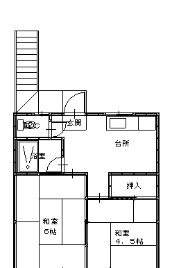
間取り図
物件詳細情報
| 物件番号 | DB0005 | 所在地 | 松江市雑賀町128 |
|---|---|---|---|
| 種別 | アパート、コーポ | 構造 | 木造 |
| 建築年月 | 1986年7月 | 間取り | 2K |
| 専有面積 | 31.34m² | 向き | 南 |
| 建物階数 | 2階建 | 駐車場 | 有(料金込み) |
| 駐車料金 | 所在階数 | 2階部 | |
| 取引形態 | 仲介 | 仲介料 | 49,500円 |
| 敷き引き | |||
| 保険料 | 要加入 19000円/2年毎 | ||
| 校区 | 雑賀小・三中 | ||
| 備考 | ★★★松江駅まで徒歩9分! バス停まで徒歩1分! コンビニまで徒歩2分!★★★ 利便性の良いところです♪ 【設備】 上下水道、都市ガス、CATV、エアコン、照明器具、ウォシュレット、室内洗濯機置場、2口コンロ設置可 【その他】 ・保証会社要加入 初回保証料:賃料総額×50%、更新保証料:12000円/年 ※学生プラン有 ・火災保険要加入 参考価格 19000円(2年間)更新あり ・更新時事務手数料 5500円(2年毎) ・CATVの利用料は無料です。 ・内観写真、間取図が異なる場合、現状優先となります。 |
||
| 物件番号 | DB0005 |
|---|---|
| 所在地 | 松江市雑賀町128 |
| 種別 | アパート、コーポ |
| 構造 | 木造 |
| 建築年月 | 1986年7月 |
| 間取り | 2K |
| 専有面積 | 31.34m² |
| 向き | 南 |
| 建物階数 | 2階建 |
| 駐車場 | 有(料金込み) |
| 駐車料金 | |
| 所在階数 | 2階部 |
| 取引形態 | 仲介 |
| 仲介料 | 49,500円 |
| 敷き引き | |
| 保険料 | 要加入 19000円/2年毎 |
| 校区 | 雑賀小・三中 |
| 備考 | ★★★松江駅まで徒歩9分! バス停まで徒歩1分! コンビニまで徒歩2分!★★★ 利便性の良いところです♪ 【設備】 上下水道、都市ガス、CATV、エアコン、照明器具、ウォシュレット、室内洗濯機置場、2口コンロ設置可 【その他】 ・保証会社要加入 初回保証料:賃料総額×50%、更新保証料:12000円/年 ※学生プラン有 ・火災保険要加入 参考価格 19000円(2年間)更新あり ・更新時事務手数料 5500円(2年毎) ・CATVの利用料は無料です。 ・内観写真、間取図が異なる場合、現状優先となります。 |
28 since 2024-11-29
地図
この物件の周辺地図を開く取り扱い店舗
有限会社 総合宅建
〒690-0048 島根県松江市西嫁島1丁目1−13
[免許番号]島根県知事(4)1120号
公益社団法人 島根県宅地建物取引業協会会員
公益社団法人 全国宅地建物取引業保証協会会員
一般社団法人 全国賃貸不動産管理業協会会員
【営業時間】9:00〜17:00
【定休日】土・日・祝

- 0852-28-8032
ご連絡の際は「山陰不動産ナビを見た」と言うとスムーズです - FAX
- 0852-28-8034























